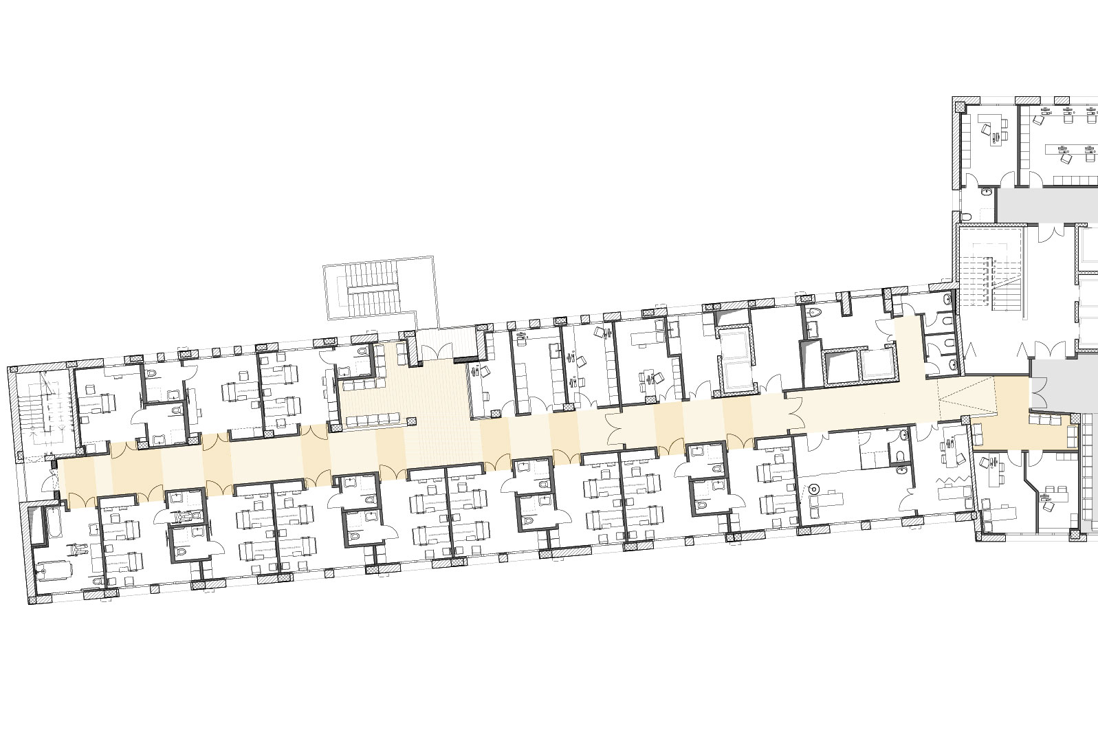
Adeguamento Monoblocco – Dolo (VE)

Data
Categoria
Sanità
Info progetto

Adeguamento Monoblocco – Dolo (VE)

Committente:
ULSS3 Serenissima Dolo

Luogo di esecuzione:
Dolo, Venezia

Funzioni svolte:
Progettazione definitiva ed esecutiva + CSP
Direzione Lavori + CSE
Prevenzione incendi

Importo dei lavori:
€ 2.500.000,00