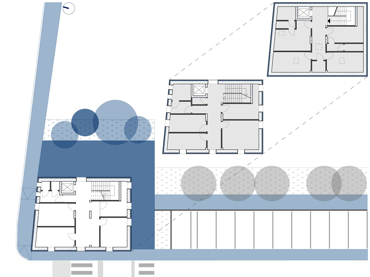
Ex Centrale del Latte I° stralcio – Vicenza

Data
Categoria
Masterplan, Sanità
Info progetto

Ex Centrale del Latte I° stralcio – Vicenza

Poliambulatori
Bando Periferie 2016

Committente:
Comune Vicenza

Luogo di esecuzione:
Vicenza

Funzioni svolte:
Progettazione definitiva ed esecutiva + CSP

Importo dei lavori:
€ 1.025.000,00